FFGPW4X給水管道復合式高速進排氣閥產品概述
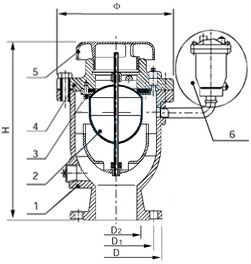
FFGPW4X給水管道復合式高速進排氣閥是一種由閥體、浮體、大孔密封組件、閥蓋、排氣罩、小孔排氣閥以及檢修閥和防護網等主要部件組成的法蘭連接的分體式帶防護網進排氣閥,其浮體裝于閥體內,容重小于水,當水進入閥腔時可隨水浮起,空管時大孔排氣和運行時的小孔排氣都以介質對浮體的浮力為驅動源,驅動浮球的升降來完成閥門的啟閉,而且浮球的運動都在同一中心線上。該閥在頂部的進排氣通道外側設置有采用2mm~3mm厚的碳素鋼或不銹鋼圓孔篩板按設計圖樣卷制,縫隙用電焊連接的金屬防塵網,當管道內出現負壓需從外界吸入空氣時,可過濾吸入空氣中臟物,使它不易被堵塞和損壞。本產品特別適合安裝在地上時的工況,是供水企業廠站給水管道專用的進、排氣控制裝置。
FFGPW4X給水管道復合式高速進排氣閥部件材料
序號 | 零部件名稱 | 材料名稱 | ||||
1 | 閥 體 | QT450 | WCB | CF8 | CF8M | CF3M |
2 | 浮 體 | 06Cr19Ni10 | 06Cr19Ni10 | 06Cr19Ni10 | 06Cr17Ni12Mo2 | 022Cr17Ni12Mo2 |
3 | 密 封 組 件 | NBR/EPDM | NBR/EPDM | NBR/EPDM | NBR/EPDM | NBR/EPDM |
4 | 閥 蓋 | QT450 | WCB | CF8 | CF8M | CF3M |
5 | 排 氣 罩 | QT450 | WCB | CF8 | CF8M | CF3M |
6 | 小孔排氣閥 | QT450 | WCB | CF8 | CF8M | CF3M |
7 | 防 護 網 | 06Cr19Ni10 | 06Cr19Ni10 | 06Cr19Ni10 | 06Cr17Ni12Mo2 | 022Cr17Ni12Mo2 |
8 | 螺 柱 | 06Cr19Ni10 | 06Cr19Ni10 | 06Cr19Ni10 | 06Cr17Ni12Mo2 | 06Cr17Ni12Mo2 |
9 | 螺 母 | 06Cr19Ni10 | 06Cr19Ni10 | 06Cr19Ni10 | 06Cr17Ni12Mo2 | 06Cr17Ni12Mo2 |
FFGPW4X給水管道復合式高速進排氣閥性能規范
公稱壓力PN(MPa) | 0.25 | 0.6 | 1.0 | 1.6 | 2.5 |
殼體強度試驗壓力(MPa) | 0.375 | 0.9 | 1.5 | 2.4 | 3.75 |
高壓水密封試驗壓力(MPa) | 0.275 | 0.66 | 1.1 | 1.76 | 2.75 |
低壓水密封試驗壓力(MPa) | 0.02 | 0.02 | 0.02 | 0.02 | 0.02 |
設計制造 | CJ/T 217-2013 給水管道復合式高速進排氣閥 | ||||
法蘭標準 | GB/T 17241.6-2008、JB/T 79-2015、GB/T 9113-2010等 | ||||
檢驗試驗 | CJ/T 217-2013 給水管道復合式高速進排氣閥 | ||||
適用水溫 | 0℃~65℃ | ||||
FFGPW4X給水管道復合式高速進排氣閥外形尺寸
公稱壓力 PN(MPa) | 公稱尺寸 DN(mm) | 尺寸(mm) | |||||
Φ | H | D | D1 | D2 | Z-?d | ||
1.6 | 20 | 195 | 320 | 105 | 75 | 55 | 4-14 |
25 | 195 | 320 | 115 | 85 | 65 | 4-14 | |
32 | 195 | 320 | 135 | 100 | 78 | 4-18 | |
40 | 195 | 320 | 145 | 110 | 85 | 4-18 | |
50 | 195 | 320 | 160 | 125 | 100 | 4-18 | |
80 | 242 | 375 | 195 | 160 | 135 | 8-18 | |
100 | 260 | 395 | 215 | 180 | 155 | 8-18 | |
150 | 345 | 500 | 280 | 240 | 210 | 8-23 | |
200 | 425 | 600 | 335 | 295 | 265 | 12-23 | |
250 | 465 | 680 | 405 | 355 | 320 | 12-25 | |
300 | 505 | 780 | 460 | 410 | 375 | 12-25 | |
350 | 605 | 860 | 520 | 470 | 435 | 16-25 | |
400 | 660 | 940 | 580 | 525 | 485 | 16-30 | |
表中只列出了部分JB/T 79-2015標準PN16法蘭連接外形尺寸。如需其他規格尺寸,請咨詢汗越閥門! | |||||||
FFGPW4X給水管道復合式高速進排氣閥結構圖

如果你需訂購我廠排氣閥產品,咨詢時煩請告知公稱尺寸、公稱壓力、閥體和閥內件材料、法蘭標準及法蘭密封面形式等,本產品維修周期長,工作可靠且為自動化控制,在注意避免人為破壞或凍傷等前提下,無需頻繁精細的維護與保養。
網站首頁