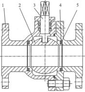
高溫硬密封球閥由閥體、球體、閥桿、金屬閥座及閥座與閥體間的柔性石墨密封圈組成。兩個閥座以閥桿軸心為對稱中心嵌入閥體,閥座可在閥體嵌入槽中滑動,閥座與閥體之間的密封靠柔性石墨密封圈來實現。由于柔性石墨密封圈可壓縮變形,該結構球閥在一定溫度范圍內使用不會因球體受熱膨脹卡住不能動作,此結構硬密封球閥可用于溫度不超過343℃的工況。

1、閥體 2、球體 3、閥桿 4、密封圈 5、閥座
圖 1對稱閥座高溫球閥
圖 2所示高溫球閥用金屬彈性圈作閥座密封圈,用來補償溫差、壓力和磨損等外界條件變化對球閥密封性能影響。該閥由閥體、球體、閥桿、金屬閥座、閥座與閥體間的柔性石墨密封圈、金屬彈性圈、金屬彈性圈壓環及密封墊組成。兩個閥座一個為可在閥體嵌入槽中滑動的金屬閥座,另一個為可變形的金屬彈性圈閥座。該結構球閥在球體受熱膨脹時金屬彈性圈閥座可變形,使球體不致卡住不能動作。

1、密封圈 2、閥座 3、閥體 4、球體 5、閥桿 6、壓環 7、金屬彈性圈 8、密封墊
圖 2金屬彈性圈高溫球閥
圖 3所示高溫球閥使用碟形彈簧加載密封副結構。該閥由閥體、球體、閥桿、閥后閥座、閥后閥座密封圈、閥前閥座、閥前閥座密封圈、壓環及碟形彈簧等組成。閥前閥座、閥前閥座密封圈、壓環為一組件,碟形彈簧壓在組件上。球閥裝配后碟形彈簧受壓,它一方面為閥門密封提供初始力,另一方面壓縮閥座和閥體間的密封圈,使閥座和閥體間密封。該結構球閥兩個閥座以閥桿軸心為對稱中心嵌入閥體,閥座可在閥體嵌入槽中滑動,在球體受熱膨脹時閥座組件滑動,碟形彈簧受壓變形,避免球體卡住不能動作。

1、閥體 2、密封圈 3、閥后閥座 4、球體 5、閥桿 6、閥前閥座 7、密封圈 8、壓環 9、碟形彈簧
圖 3碟形彈簧加載高溫球閥結構

1、閥體 2、碟形彈簧 3、閥前閥座 4、球體 5、閥桿 6、閥后閥座 7、密封圈
圖 4新型高溫球閥結構
圖 4所示是某國外閥門企業推出的一種硬密封高溫球閥,該閥由閥體、球體、閥桿、閥前閥座、碟形彈簧、閥后閥座、閥后閥座與閥體間的柔性石墨密封圈等組成。球閥閥后閥座通過螺紋直接旋入閥體并壓縮柔性石墨密封圈,使閥后閥座和閥體間密封不再依靠碟形彈簧壓縮柔性石墨密封圈來保證閥座和閥體間的密封。球閥閥前閥座徑向與閥體間有間隙,在球體受熱膨脹時閥前閥座可在閥體槽中自由滑動,壓縮碟形彈簧變形,使球體避免卡住不能動作。
地 址:上海市金山區興塔工業區
咨詢電話:021-5736 2601
手機號碼:138 1635 7694
電子郵箱:hanyuev@163.com
網 址:http://www.3ebezih.cn