TB5F雙金屬片式蒸汽疏水閥產品概述
TB5、TB5W、TB5F雙金屬片式蒸汽疏水閥是一種通過閥內凝結水溫度的變化而引起雙金屬片不同程度的變形來推動閥芯做啟閉動作,從而達到阻汽排水目的的蒸汽疏水閥,其是根據閥腔內溫度變化造成溫感,從而使雙金屬片遇到相應的溫度會自動變形,驅動閥芯向下移動關閉閥座孔,進而閥內溫度會開始漸漸下降,當降到閥腔有凝結水時,其腔內溫度對雙金屬片不會造成變形,這樣在彈簧彈力的作用下,閥芯和閥座保持開啟狀態,所以會一直把凝結水排除,排盡凝結水后閥腔的溫度會漸漸升高,雙金屬片會再次變形關閉閥座孔,這樣反復的開啟和關閉,達到排水阻汽的效果。該閥為正向密封型,打開閥芯的力為彈簧的彈力,閥芯關閉后介質壓力作用在閥芯上,使閥芯密封力隨介質壓力的增加而變大,故而密封可靠,無蒸汽漏損。本產品按端部連接形式的不同分為TB5F法蘭型、TB5W承插焊型、TB5螺紋型三種,安裝不受方位限制,但閥門入口管應有1~2米的裸管,以利于閥門排水。
TB5F雙金屬片式蒸汽疏水閥部件材料
序號 | 部件名稱 | 材料名稱 | ||||
1 | 閥 體 | A105 | A182 F11 CL.2 | A182 304 | A182 316 | A182 316L |
2 | 閥 蓋 | A105 | A182 F11 CL.2 | A182 304 | A182 316 | A182 316L |
3 | 閥 帽 | A105 | A182 F11 CL.2 | A182 304 | A182 316 | A182 316L |
4 | 螺 桿 | A276 304 | A276 304 | A276 304 | A276 316 | A276 316L |
5 | 雙金屬片 | A182 304 | A182 304 | A182 304 | A182 316 | A182 316L |
6 | 彈 簧 | A276 304 | A276 304 | A276 304 | A276 316 | A276 316L |
7 | 閥 芯 | 17-4PH | 17-4PH | A276 304 | A276 316 | A276 316L |
8 | 閥 座 | 17-4PH | 17-4PH | A276 304 | A276 316 | A276 316L |
TB5F雙金屬片式蒸汽疏水閥性能參數
公稱壓力PN(MPa) | 1.6 | 2.5 | 4.0 | 2.0 | 5.0 |
殼體試驗壓力(MPa) | 2.4 | 3.75 | 6.0 | 3.0 | 7.5 |
調整溫度范圍(℃) | 50 ~ 200 | ||||
設計制造 | GB/T 22654-2008 蒸汽疏水閥 技術條件 | ||||
結構長度 | GB/T 12250-2005 蒸汽疏水閥 術語、標志、結構長度 | ||||
連接法蘭 | JB/T 79、GB/T 9113、HG/T 20592、HG/T 20615、ASME B16.5等 | ||||
螺紋標準 | GB/T 7306.1、GB/T 7306.2、GB/T 7307、GB/T 12716、ASME B1.20.1等 | ||||
焊接端部 | 承插焊按JB/T 7746或ASME B16.11,對焊按GB/T 12224或ASME B16.25等 | ||||
檢驗試驗 | GB/T 12251-2005 蒸汽疏水閥 試驗方法 | ||||
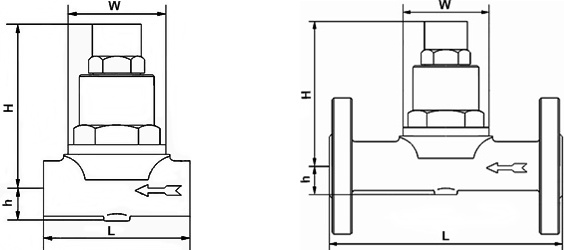
TB5F雙金屬片式蒸汽疏水閥外型尺寸
公稱壓力 PN | 公稱通徑 DN | 法蘭連接結構尺寸(mm) | 螺紋和承插焊連接結構尺寸(mm) | ||||||
L | H | h | W | L | H | h | W | ||
16 ~ 40 (Class150)20 | 15 | 150 | 90 | 17 | 56 | 80 | 90 | 17 | 56 |
20 | 150 | 90 | 19 | 56 | 80 | 90 | 19 | 56 | |
25 | 160 | 90 | 23 | 56 | 85 | 90 | 23 | 56 | |
TB5F雙金屬片式蒸汽疏水閥結構圖

如果你需要的可調式雙金屬片蒸汽疏水閥有技術要求,須在訂貨合同中提供以下參數:最高工作壓力、法蘭標準、工作壓差、閥體材料、內件材質、公稱通徑、公稱壓力等。
網站首頁