直通籃式過濾器產品概述
直通籃式過濾器是一種適用于石油、化工、輕工等生產中的液體及氣體介質,用以過濾其固體雜質的裝置,它由壓緊法蘭、進出料接管、斜度板、平板或封頭與筒體通過焊接工藝組成本體,上蓋蓋在壓緊法蘭上,其中籃狀濾芯放置在筒內斜度板上,當帶有雜質的流體從入口進入,流進濾籃后,顆粒物被阻擋在濾網內,清潔后的濾料則由出口排出,從而獲得純凈的物料,其可根據需要設計成快開盲板結構(如杠桿式)支持快速拆卸頭蓋清理濾籃,減少停機時間。本產品通常水平安裝在泵、壓縮機的入口或流量儀表前的管道上攔截流體中較大的固體雜質,使機器設備、閥門、儀表能正常工作和運轉,達到穩定工藝過程,保障生產的作用,其主要型號有SRBIF、SRBIIF、SRBIW、SRBIIW和SRBI4、SRBII4、SRBI5、SRBII5、SRBIJ4、SRBIJ5及SB14、SB24、SB16、SB26等。
直通籃式過濾器部件材料
| 序號 | 部件名稱 | 材料名稱 | |||||
| 1 | 筒 體 | Q235B | 20# | 15CrMo | 304 | 316 | 316L |
| 2 | 接 管 | Q235B | 20# | 15CrMo | 304 | 316 | 316L |
| 3 | 濾 籃 | 304 | 304 | 304 | 304 | 316 | 316L |
| 4 | 法 蘭 | Q235B | A105 | 15CrMo | 304 | 316 | 316L |
| 5 | 密 封 件 | 聚四氟乙烯、柔性石墨復合墊、金屬環形墊、金屬纏繞墊 | |||||
| 6 | 上 蓋 | Q235B | Q235B | 15CrMo | 304 | 316 | 316L |
| 7 | 平板封頭 | Q235B | Q235B | 15CrMo | 304 | 316 | 316L |
| 8 | 螺 栓 | 35CrMoA | 35CrMoA | 25Cr2MoVA | 304 | 316 | 316 |
| 9 | 螺 母 | 30CrMo | 30CrMo | 35CrMoA | 304 | 316 | 316 |
直通籃式過濾器技術規范
| 公稱壓力PN(MPa) | 1.0 | 1.6 | 2.5 | 4.0 | 2.0 | 5.0 |
| 殼體試驗壓力(MPa) | 1.5 | 2.4 | 3.75 | 6.0 | 3.0 | 7.5 |
| 氣密性試驗壓力(MPa) | 1.0 | 1.6 | 2.5 | 4.0 | 2.0 | 5.0 |
| 設計制造 | SH/T 3411-2017、JB/T 7538-2016、HG/T 21637-2021 | |||||
| 連接法蘭 | GB/T 9115、GB/T 9119、HG/T 20592、HG/T 20615、SH/T 3406、ASME B16.5等 | |||||
| 檢驗試驗 | SH/T 3411-2017、JB/T 7538-2016、HG/T 21637-2021 | |||||
| 過濾精度 | 0.02mm ~ 16.0mm | |||||
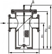
直通籃式過濾器主要尺寸
| 公稱壓力 PN | 公稱通徑 DN | 外形尺寸/mm | B (in) | ||||
| Φ | L | H1 | H2 | H3 | |||
| 16 | 25 | 89 | 220 | 160 | 260 | 360 | R? |
| 32 | 89 | 220 | 165 | 270 | 370 | R? | |
| 40 | 114 | 280 | 180 | 300 | 400 | R? | |
| 50 | 114 | 280 | 180 | 300 | 400 | R? | |
| 65 | 140 | 330 | 220 | 350 | 460 | R? | |
| 80 | 168 | 340 | 260 | 400 | 510 | R? | |
| 100 | 219 | 420 | 310 | 470 | 580 | R? | |
| 150 | 273 | 500 | 430 | 620 | 730 | R? | |
| 200 | 325 | 560 | 530 | 780 | 900 | R? | |
| 250 | 426 | 660 | 640 | 930 | 1050 | R? | |
| 300 | 478 | 750 | 840 | 1200 | 1350 | R? | |
| 表中未列出的其他規格尺寸,請咨詢汗越閥門技術部! | |||||||
直通籃式過濾器結構圖

如果你需訂購我廠籃式過濾器產品,咨詢時煩請說明結構型式(平底、封頭)、公稱直徑、公稱壓力、殼體材質、濾籃材料及過濾精度、法蘭標準及密封面形式等。
網站首頁