夾套保溫球閥產品概述
夾套保溫球閥是在浮動球或固定球球閥的殼體外表面上焊裝一層保溫夾套,用于注入蒸汽、導熱油或其它保溫、保冷流體,確保閥內介質能夠正常工作。該產品具有良好的保溫保冷特性,且閥門的通徑與管徑一致,同時又能有效降低管路中介質熱量損失。本產品可采用整體式或二片式結構形式,廣泛適用于化工、石油、制藥、冶金等行業的管路系統中。
夾套保溫球閥采用蒸氣或熱油等流體在夾套中流動進行加熱,故即使外界溫度降到零度以下甚至很低,該閥仍操作靈活,保證介質輸送管道啟閉正常,此優點是一般普通閥所沒有的,本產品是重油輸送管道較好的控制閥門。
夾套保溫球閥部件材料
| 序號 | 部件名稱 | 材料名稱 | ||||
| 1 | 閥 體 | WCB | CF8 | CF3 | CF8M | CF3M |
| 2 | 端 蓋 | WCB | CF8 | CF3 | CF8M | CF3M |
| 3 | 球 體 | 2Cr13 | 304 | 304L | 316 | 316L |
| 4 | 閥 座 | R-PTFE、PTFE、TEFLON、NYLON、PPL、PEEK、DEVLON、SS+HF | ||||
| 5 | 閥 桿 | 2Cr13 | 304 | 304L | 316 | 316L |
| 7 | 填料壓蓋 | WCB | CF8 | CF3 | CF8M | CF3M |
| 8 | 填 料 | GRAPHITE、R-PTFE、PTFE、TEFLON、PCTFE | ||||
| 9 | 保溫夾套 | Q235B | 304 | 304 | 304 | 304 |
| 10 | 螺 栓 | 35CrMoA | 304 | 304 | 316 | 316 |
| 11 | 螺 母 | 30CrMoA | 304 | 304 | 316 | 316 |
夾套保溫球閥性能規范
| 公稱壓力PN(MPa) | 1.0 | 1.6 | 2.5 | 4.0 | 6.4 |
| 殼體強度試驗壓力(MPa) | 1.5 | 2.4 | 3.75 | 6.0 | 9.6 |
| 高壓液體密封試驗壓力(MPa) | 1.1 | 1.76 | 2.75 | 4.4 | 7.04 |
| 低壓氣體密封試驗壓力(MPa) | 0.6 | 0.6 | 0.6 | 0.6 | 0.6 |
| 設計制造 | JB/T 13458-2018 保溫夾套閥門 | ||||
| 法蘭尺寸 | JB/T 79、GB/T 9113、HG/T 20592、HG/T 20615、SH/T 3406 | ||||
| 結構長度 | JB/T 13458-2018 保溫夾套閥門 | ||||
| 壓力試驗 | GB/T 13927-2008 工業閥門 壓力試驗 | ||||
夾套保溫球閥主要尺寸
| 公稱壓力 PN(MPa) | 公稱尺寸 DN(mm) | 連接端規格 A×B(mm) | 外形尺寸(mm) | 保溫加熱流體的入口及出口 | ||
| L | L1 | 螺紋連接 | 法蘭連接 | |||
| 1.6 ~ 2.5 | 15 | 15×32 | 108 | 45 | G ? | DN15 |
| 15 | 15×40 | 108 | 45 | G ? | DN15 | |
| 20 | 20×40 | 117 | 55 | G ? | DN15 | |
| 25 | 25×50 | 127 | 65 | G ? | DN15 | |
| 32 | 32×50 | 140 | 78 | G ? | DN15 | |
| 40 | 40×65 | 165 | 85 | G ? | DN15 | |
| 40 | 40×80 | 165 | 85 | G ? | DN15 | |
| 50 | 50×80 | 178 | 100 | G ? | DN15 | |
| 65 | 65×100 | 203 | 120 | G ? | DN20 | |
| 80 | 80×125 | 229 | 135 | G ? | DN20 | |
| 100 | 100×150 | 254 | 155 | G ? | DN20 | |
| 125 | 125×200 | 267 | 185 | G ? | DN20 | |
| 150 | 150×200 | 292 | 210 | G ? | DN20 | |
| 150 | 150×250 | 292 | 210 | G ? | DN20 | |
| 200 | 200×250 | 330 | 265 | G ? | DN25 | |
| 200 | 200×300 | 330 | 265 | G ? | DN25 | |
| 表中為一體式浮動球閥結構尺寸,其中A為閥門的公稱尺寸,B為連接端法蘭的公稱尺寸。 | ||||||
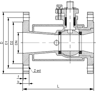
夾套保溫球閥結構圖

如果你需訂購我廠保溫球閥產品,訂貨合同中請注明結構型式、公稱通徑、公稱壓力、閥體和內件材質、使用介質、工作溫度,本產品夾套加熱流體接口可提供螺紋和法蘭兩種連接形式,如無說明,默認為螺紋連接。
網站首頁